Montažna kuća od lake čelične konstrukcije
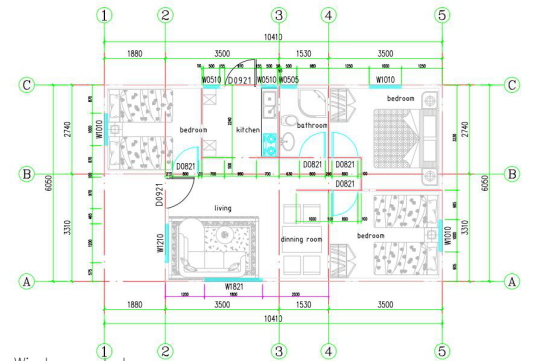
Montažna kuća sa tri spavaće sobe, jednom kuhinjom, jednim kupatilom, jednim dnevnim boravkom, ukupne površine oko 60 kvadratnih metara.
Ovdje je tlocrt

Prikaz materijala montažne kuće od čelične konstrukcije

Boja čeličnog lima poklopac ruba lim za savijanje

Sendvič panel vrata EPS sendvič panel

EPS sendvič panel i sendvič panel od staklene vune
Montažne kuće od lake čelične konstrukcije odnose se na tip građevinskog oblika koji koristi lake čelične materijale za proizvodnju prefabrikovanih komponenti i njihovo sklapanje na licu mjesta. Njegove karakteristike su lagana, brza montaža, višekratna upotreba, ekološki prihvatljiva i ušteda energije. Zbog upotrebe prefabrikovanih komponenti za proizvodnju, može se značajno skratiti ciklus izgradnje, poboljšati kvalitet projekta, smanjiti uticaj građevinske buke, zagađenja i drugih faktora na licu mesta.
Montažne kuće od lake čelične konstrukcije imaju različite scenarije primjene i mogu se koristiti u različitim poljima kao što su stambene zgrade, poslovne zgrade, tvornice, itd. Seizmičke karakteristike, otpornost na vatru i vjetar, te mogu postići personalizirani raspored i dekoraciju. U industrijskom polju, montažne lake čelične konstrukcije mogu se koristiti u proizvodnim radionicama, skladištima, kancelarijama i drugim mestima, sa karakteristikama lake težine, zaštite životne sredine i mogućnosti ponovne upotrebe.
Kako instalirati montažnu kuću?
1. Postavljanje linije i fiksiranje kanala za uzemljenje
2. Popravite zidne ploče
3. Popravite vrata i prozore
4. Popravite stropne ploče
5. Popravite krovne grede i grede
6. Popravite krovnu ploču
7. Popraviti bliceve i ostalo
Ako želite izgraditi montažnu kuću, ne ustručavajte se kontaktirati me sada.
Mr.Andy
Email:kxdandy@chinasteelstructure.cn
Tel:+86 532 85397878
Faks:+86 532 85397878
Mobilni/Whatsapp:+86 13853233236
Skype:andyyu0074
Popularni tagovi: Prefab Light Steel Structure House, Kina, proizvođači, dobavljači, tvornica, jeftino, prilagođeno, cijena, ponuda, montažno


